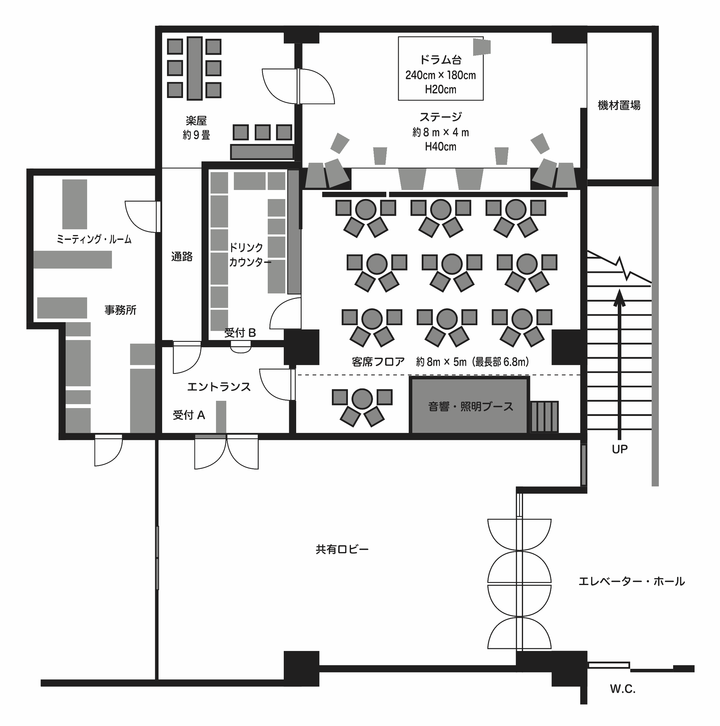
Information

 

クリックで拡大します。